Детальний опис об`єкта №1191:
новий будинок, вул.Новопричистенська, р-н кн "Мир", поряд вул.Чорновола, зупинки міського транспорту, маркети, кривалівський ринок.
Будинок розташований на приватизованій земельній ділянці праивльної прямокутної форми 4.25сот, на території є гараж.
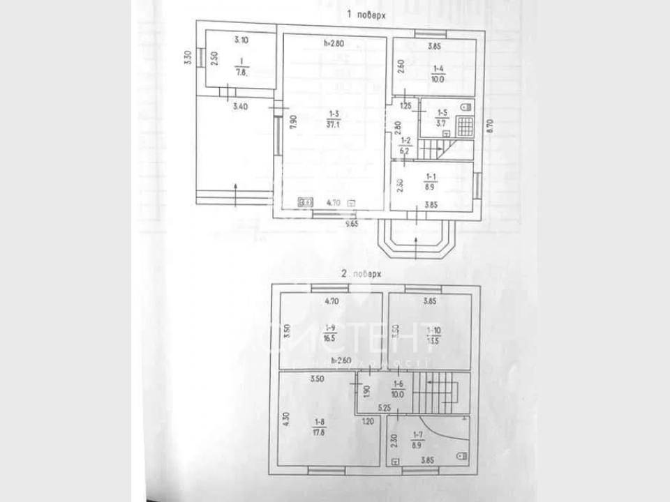
Будинок двоповерховий 135м2, 5 кімнат, дах вкритий металочерепицею, утеплена мінватой 200мм, фундамент бетонні блоки.
Комунікації електроенергія, вода та центральна каналізація підведена до будинку! Простора кухня-студія 37 кв.м., з якої відкривається вихід на літню терасу, спальня та господарче приміщення на першому поверсі та 3 кімнати і санвузол на 2-му поверсі. У будинку зроблено армування стін штукатурною сіткою. Склопакети TROCAL енергозберігаючі Німеччина, фурнітура Winkhaus. Дах виконаний з металочерепиці Словаччина.
Новий будинок в Черкасах
| Тип: | Дом |
| Район: | Чорновола - Кривалівка (к-р Мир) |
| Адреса: | провулок Радищева, |
| Поверховість: | 2 |
| Загальна площа: | 130 м2 |
| Площа ділянки: | 4.2 Сот. |
| Матеріал стін: | газоблок |
| Планування: | - |
| Балкон: | - |
| Ціна: | 2 973 300 Грн. |
| Еквівалент: | 110 000 $ |
| Еквівалент: | 104 500 € |
| Переглядів: | 167 |
| Дата публікації: | 2025-12-11 12:01:02 |
Цікавлять деталі?
Введіть Вашe им`я:
:
Введіть Ваш телефон:
:

